Projetos
Exemplos reais do meu trabalho em arquitetura, usando ferramentas como SketchUP e Vray
Projetos
Veja alguns dos meus trabalhos recentes em arquitetura.
Casa Verde
Residência sustentável com integração ao jardim.
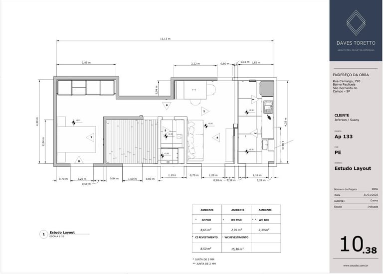
Apartamento 133
Projeto residencial com design funcional e elegante.
